NEW ラ セーヌ ふじみ野の2LDK賃貸マンション
-
-
交通
東武東上線 「ふじみ野駅」 徒歩9分
東武東上線 「上福岡駅」 徒歩15分
2026年6月完成光熱費削減ZEH-M対応ペット共生へーベルメゾン高断熱仕様により年中快適犬・猫・中型犬・多頭飼いご相談ください〜住むことまるごと〜リロの賃貸へお任せください
049-238-4322
川越店
お問い合わせNO:RHS-14277839
| 所在地 |
埼玉県ふじみ野市丸山9- 周辺MAP |
| 交通 |
東武東上線 「ふじみ野駅」 徒歩9分
東武東上線 「上福岡駅」 徒歩15分
|
| 種別 / 構造 |
賃貸マンション / - |
主要採光面 |
東南 |
所在階 / 階数 |
2階 / 3階 |
| 築年月 |
新築 |
間取り |
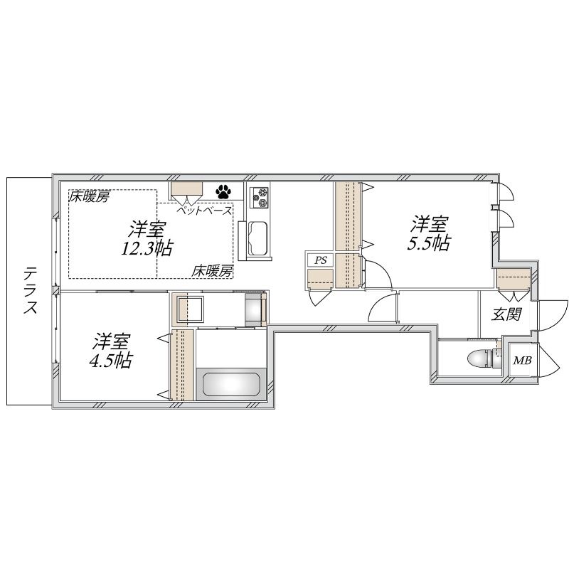
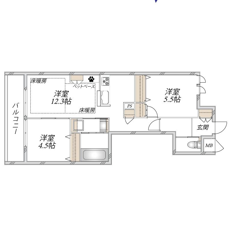
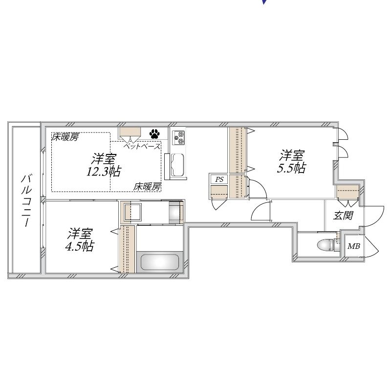
2LDK( LDK13.8畳/洋室5.3畳/洋室6.1畳 ) |
専有面積 |
60.79m2 |
| 損保 |
要 15,400円/2年 |
更新料 |
あり 1ヶ月 |
鍵交換代 |
- |
| 駐車場 |
あり8,800円 |
近隣駐車場 |
|
契約期間 借家区分 |
2年 普通 |
| 現況 |
未完成 |
入居可能日 |
2026年7月上旬 |
取引態様 |
専任 |
| 保証会社 |
My Concier パートナー 初回時毎月支払額の50% 2年毎に2万円 |
仲介手数料 |
110% |
バイク置き場 |
|
| その他費用 |
-
My Concier Club/2年
18,000円
-
-
-
室内清掃費用
-
|
| キッチン |
|
| バス・トイレ |
- 給湯
- バストイレ別
- シャワー
- 追焚機能浴室
- 浴室乾燥機
- 洗面所独立
- 温水洗浄便座
- シャワー付洗面台
- 室内洗濯機置き場
|
| 住空間 |
|
| 設備・サービス |
- クロゼット
- シューズボックス
- TVインターホン
- オートロック
- 宅配ボックス
- 駐輪場
- BS
- ネット使用料不要
|
| 特 徴 |
|
| 条件・その他 |
ガス:都市 / 水道:公営 / 排水:下水 / ペット:可能 / 保証会社:必加入 |
| コメント |
2026年6月完成光熱費削減ZEH-M対応ペット共生へーベルメゾン高断熱仕様により年中快適犬・猫・中型犬・多頭飼いご相談ください〜住むことまるごと〜リロの賃貸へお任せください |
| 備 考 |
- |
| 情報更新日:2026年04月28日 |
次回更新予定日:2026年05月12日 |
※各種情報と差異がある場合は現況優先となります
※物件情報の学区情報について
当サイト物件情報に記載されております通学区域(学区)情報は、国土数値情報ダウンロードサービスが提供する小学校区データ【2021年度】及び中学校区データ【2021年度】を元に加工したものですので、記載情報が現在の学区域と異なる場合がございます。国土数値情報ダウンロードサービスのWEBサイト上で記述通り、データは必ずしも正確とは言えません。また、通学区域(学区)は毎年見直しの対象となりますので、そちらを踏まえ学区情報は参考としてご活用下さい。
049-238-4322
川越店
お問い合わせNO:RHS-14277839
あなたにおすすめの類似物件
-
賃貸マンション 16.7万円
ふじみ野駅 徒歩13分 2LDK(56.19u)
閲覧した物件の一覧を見る
|