南大塚の3LDK賃貸マンション!|リロの賃貸 レックス大興

PC
レックス大興ロゴ
お問合せ
TOPページ
賃貸物件検索
川越市の賃貸情報一覧
(仮称)川越市豊田町メゾン 南大塚の3LDK賃貸マンション


※このページの情報は広告情報ではありません。過去から現在までリロの賃貸 レックス大興のホームぺージに掲載されていた物件情報を元に生成した参考情報です。

物件概要

交通機関 西武新宿線 南大塚駅 徒歩24分
JR川越線 川越 徒歩34分
住所 埼玉県川越市豊田町2丁目20-
種別 / 構造 マンション / S造(鉄骨造)
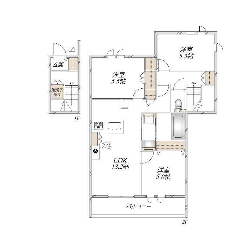
築年数 新築 建物階建 2階 間取り一例 3LDK
設備・条件
の一例
給湯 / バストイレ別 / シャワー / 追焚機能浴室 / 浴室乾燥機 / 洗面所独立 / 温水洗浄便座 / シャワー付洗面台 / 最上階 / 角部屋 / バルコニー / フローリング / エアコン / クロゼット / シューズボックス / TVインターホン / 宅配ボックス / 駐輪場 / BS / 防犯カメラ / ネット使用料不要 / システムキッチン / 対面式キッチン / 3口以上コンロ /  室内洗濯機置き場 / 

学区情報

小学校区
()
中学校区
()
※各種情報と差異がある場合は現況優先となります
※物件情報の学区情報について
当サイト物件情報に記載されております通学区域(学区)情報は、国土数値情報ダウンロードサービスが提供する小学校区データ【2021年度】及び中学校区データ【2021年度】を元に加工したものですので、記載情報が現在の学区域と異なる場合がございます。国土数値情報ダウンロードサービスのWEBサイト上で記述通り、データは必ずしも正確とは言えません。また、通学区域(学区)は毎年見直しの対象となりますので、そちらを踏まえ学区情報は参考としてご活用下さい。

こちらの物件の空室状況

間取図 部屋番号 賃料
共益費/管理費
敷金
礼金
間取り
専有面積
お気に入り 物件詳細
間取り画像
101
12万円
8,000円 -
1ヶ月
2ヶ月
2LDK
58.33m2
お気に入り 詳細を見る
間取り画像
102
11.8万円
8,000円 -
1ヶ月
2ヶ月
2LDK
57.69m2
お気に入り 詳細を見る
間取り画像
103
11.8万円
8,000円 -
1ヶ月
2ヶ月
2LDK
55.54m2
お気に入り 詳細を見る
間取り画像
201
14.3万円
8,000円 -
1ヶ月
2ヶ月
3LDK
78.87m2
お気に入り 詳細を見る
間取り画像
202
14万円
8,000円 -
1ヶ月
2ヶ月
3LDK
78.39m2
お気に入り 詳細を見る
間取り画像
203
13.9万円
8,000円 -
1ヶ月
2ヶ月
3LDK
75.05m2
お気に入り 詳細を見る

あなたにおすすめの類似物件

閲覧した物件の一覧を見る

最近検索した条件一覧


ホームページを見てと伝えてください
川越店
〒350-1123
川越市本町14-12
TEL : 049-238-4322
お問合わせNO:13981346

空室情報の確認や詳細を知りたい方
お問合せはお気軽にお問合せください!


▲ページのTOPへ戻る