西武新宿線 の賃貸マンション・アパートの空室状況|賃貸建物カタログ一覧|リロの賃貸 レックス大興

レックス大興ロゴ
お問合せ
TOPページ
賃貸建物カタログ
西武新宿線

西武新宿線 賃貸建物カタログ一覧

カタログから7件見つかりました。

西武新宿線 の募集中賃貸一覧

西武新宿線 の募集中賃貸物件が44件見つかりました。

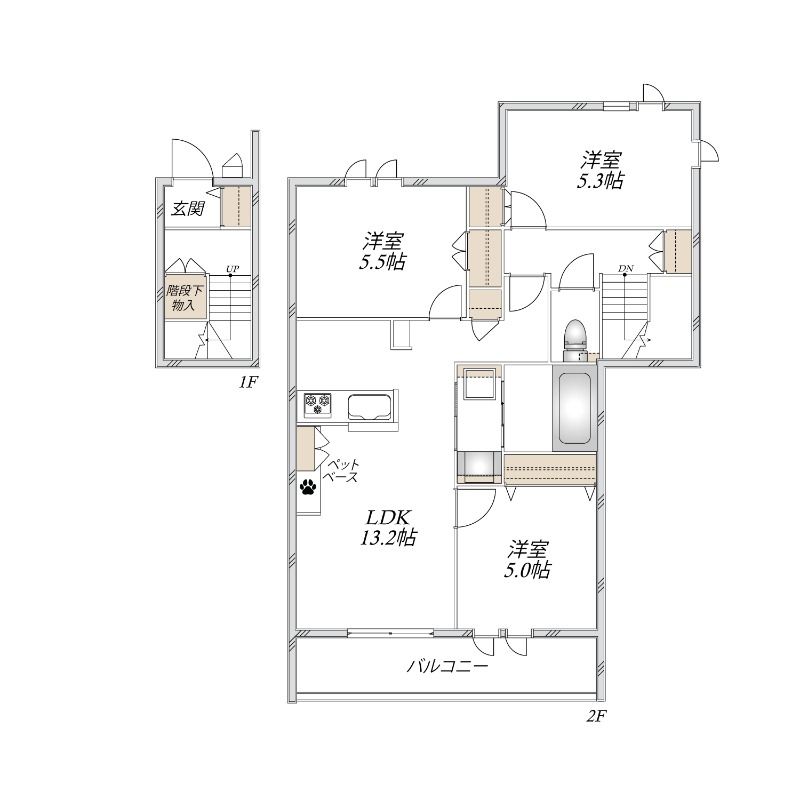
(仮称)川越市豊田町メゾン部屋番号:103

(仮称)川越市豊田町メゾン部屋番号:201

(仮称)川越市豊田町メゾン部屋番号:202

(仮称)川越市豊田町メゾン部屋番号:203

条件を選び直す

マンション・アパート名から探す
マンション・アパート名で直接検索ができます。
※半角、全角、スペースで検索結果が異なります。